Проект дома из бруса 10х12, площадью 183 м2
                                    Внесите правки в проект
                                
                                - В проект можно внести любые изменения бесплатно:
- Зеркальное отражение
- Изменить планировку внутри
- Добавить террасу
 
                        
                                            
         БРУСОВОЙ №-187
        
    
        0
    
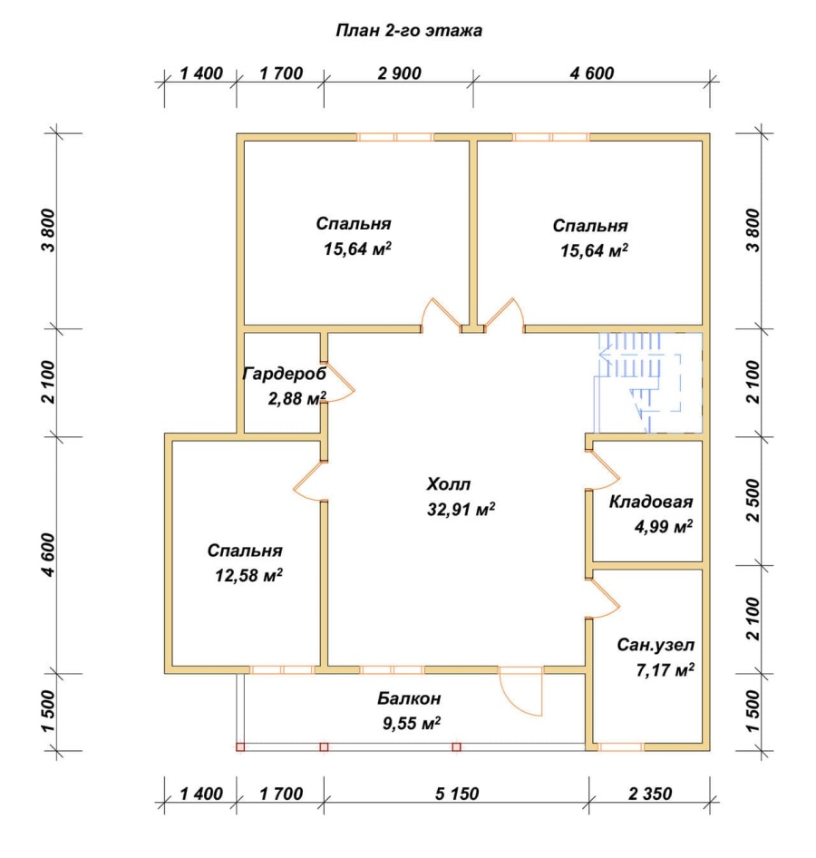
            Полутораэтажный дом
                    
     
        Размеры: 
10х12
    10х12
 
        
            Площадь: 
183 м2
    183 м2
 
        
            Этажность: 
Полутораэтажный
    Полутораэтажный
По запросу
                        
        Выбор бруса:
Выбор фундамента:
Выбор кровли:
Дополнительные услуги:
Комплектация
                    Доставка
                    Технологии
                - Дом из бруса 150х150 мм., 1 и 2 этаж.
- Высота потолков 1 этажа 2,7 м.
- Подъём стен 2 й этаж 1м.
- Высота потолков 2 этажа 2,7 м.
- Сборка стен сруба на деревянные нагеля (шканты).
- Соединение всех углов — «ласточкин хвост».
- Межвенцовый утеплитель — джут, льноволокно.
- Все перегородки 1 и 2 этаж — брус 100х150 мм.
- Балки половые и потолочные — брус 100х150 мм.
- Черновые полы – доска 25х100 мм.
- Фронтоны крыши – брус 150х150 мм.
- Стропильная система (стропила, ригеля, стойки) – брус 50х150 мм.
- Обрешетка крыши — доска 25х150 мм.
- Покрытие крыши рубероидом.
- Обработка бруса снеж огне био защита.
- Все расходные материалы (деревянные нагеля (шканты), льноволокно (джут), гвозди, гидроизоляция фундамента, рубероид).
- Доставка по Московской области и др. регионам центральной части РФ.
- Разгрузочные работы и сборка на участке заказчика.
Фундамент
 
    
        Ленточный
        Монолитный армированный фундамент глубиной 70см, из них 20см песчаная подушка и 50см армированный бетон. Над
        землей 50см армированный бетон. Ширина ленты 30 см
    
 
    
        Свайно-винтовой
        Винтовые сваи: диаметр 108, длина от 2500 мм
    
 
    
        Железобетонные сваи
        Железобетонные сваи: 150х150 мм и 200х200 мм, длина от 3000 мм
    
Стеновой комплект дома
 
        
            Двойной обвязочный ряд
            Из обрезного бруса в подарок
        
     
        
            Все перегородки 1 этажа
            Из профилированного бруса
        
     
        
            Внешние стены дома
            Дом из бруса 150х150, (145х145) мм
        
     
        
            Балки половые и потолочные
            Дом из бруса 100х150 мм
        
     
        
            Высота потолков 1 этажа
            2.7 / 2,6 м
        
     
        
            Черновые полы
            Доска 25х100 мм
        
     
        
            Сборка стен сруба
            Из обрезного бруса
        
     
        
            Фронтоны крыши
            доска 25х150 мм
        
     
        
            Соединение всех углов
            «ласточкин хвост»
        
     
        
            Стропильная система
            Доска 50х150 мм
        
     
        
            Межвенцовый утеплитель
            джут, льноволокно
        
     
        
            Обрешетка крыши
            доска 25х150 мм
        
    Отзывы
Другие проекты
 
                     
                                     
                                     
                                     
                                     
                                         
                                         
                                         
                                         
                                             
                 
                 
                 
                 
                 
                 
                 
                