Телефон
+7 915 915 44 99 9-20 ежедневно
Whatsapp viber
Обратный звонок
Оставьте номер телефона и мы перезвоним в течении 30 минут.

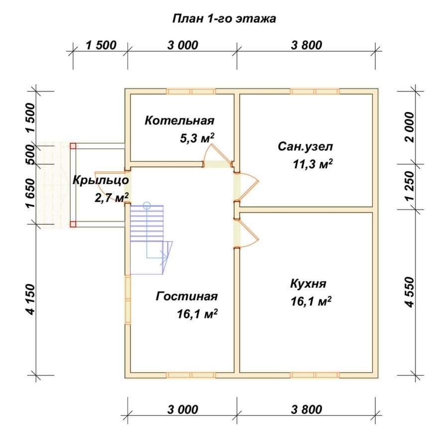
Проект дома из бруса 6х8, площадью 93 м2

Внесите правки в проект
  • В проект можно внести любые изменения бесплатно:
  • Зеркальное отражение
  • Изменить планировку внутри
  • Добавить террасу
БРУСОВОЙ №-36
Двухэтажный дом
0
Размеры:
6х8
Площадь:
93 м2
Этажность:
Двухэтажный
По запросу

Выбор бруса:

Выбор фундамента:

Выбор кровли:

Дополнительные услуги:

Комплектация
Доставка
Технологии
  • Дом из бруса 150х150 мм., 1 и 2 этаж.
  • Высота потолков 1 этажа 2,7 м.
  • Подъём стен 2 го этажа на 2м 50 см до ската крыши.
  • Высота потолков 2 этажа 2,5 м.
  • Сборка стен сруба на деревянные нагеля (шканты).
  • Соединение всех углов — «ласточкин хвост».
  • Межвенцовый утеплитель — джут, льноволокно.
  • Все перегородки 1 и 2 этаж — брус 100х150 мм.
  • Балки половые и потолочные — брус 100х150 мм.( шагом 60 см )
  • Черновые полы — доска 25х100 мм.
  • Фронтоны крыши – Имитация бруса ( Крыша на 4 ската )
  • Стропильная система (стропила, ригеля, стойки) – брус 50х150 мм. ( шагом 60 см )
  • Обрешетка крыши — доска 25х150 мм.
  • Покрытие крыши рубероидом.
  • Обработка бруса снеж огне био защита.
  • Все расходные материалы (деревянные нагеля (шканты), льноволокно (джут), гвозди, гидроизоляция фундамента, рубероид).
  • Доставка по Московской области и др. регионам центральной части РФ.
  • Разгрузочные работы и сборка на участке заказчика.

Фундамент

Ленточный Монолитный армированный фундамент глубиной 70см, из них 20см песчаная подушка и 50см армированный бетон. Над землей 50см армированный бетон. Ширина ленты 30 см
Свайно-винтовой Винтовые сваи: диаметр 108, длина от 2500 мм
Железобетонные сваи Железобетонные сваи: 150х150 мм и 200х200 мм, длина от 3000 мм

Стеновой комплект дома

Двойной обвязочный ряд Из обрезного бруса в подарок
Все перегородки 1 этажа Из профилированного бруса
Внешние стены дома Дом из бруса 150х150, (145х145) мм
Балки половые и потолочные Дом из бруса 100х150 мм
Высота потолков 1 этажа 2.7 / 2,6 м
Черновые полы Доска 25х100 мм
Сборка стен сруба Из обрезного бруса
Фронтоны крыши доска 25х150 мм
Соединение всех углов «ласточкин хвост»
Стропильная система Доска 50х150 мм
Межвенцовый утеплитель джут, льноволокно
Обрешетка крыши доска 25х150 мм

Отзывы

Другие проекты